Aquí empieza si quieres, una gran amistad, que no acabará nunca.
Vamos a estar a tu lado durante todo el proceso de compra de la casa y lo continuaremos haciendo después de la adquisición de la misma.
Vas a tomar una decisión muy importante y estamos obligados a ayudarte. Tenemos más de 30 años de experiencia inmobiliaria, somos vendedores de casas y conocemos la zona.
Contacta con nosotros, valoramos todas las ofertas.
El Lujo de Estrenar en Primera Línea de Golf
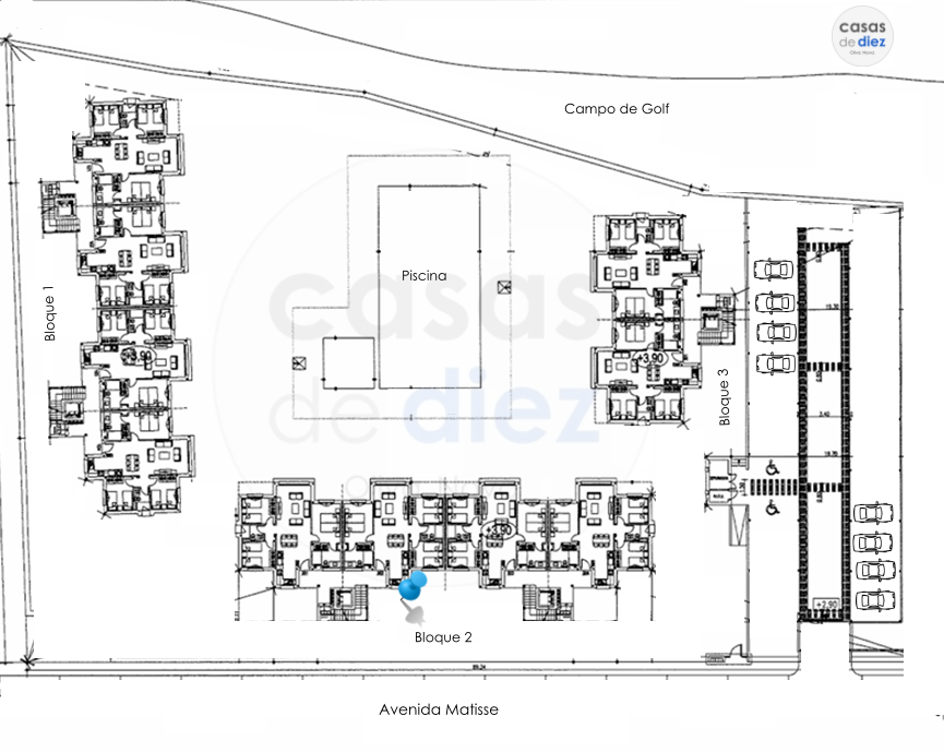
Bienvenido a la exclusividad de Club Sevilla 7 en Oliva Nova. Este espectacular apartamento en planta baja te ofrece la rara oportunidad de estrenar un hogar con acabados de primera calidad, en una de las urbanizaciones más codiciadas de la zona, frente al campo de golf.
Construido en el año 2020. Superficie construida 95,59 m2, superficie útil 84,25 m2. Totalmente exterior.
Su mayor atractivo son sus dos amplios jardines privados (71,40 m²), un verdadero oasis personal. Imagina salir directamente de tu salón a tu terraza y, desde ahí, a las zonas comunes y a la piscina, disfrutando de la comodidad de una casa con la seguridad de un apartamento.
Detalles que Marcan la Diferencia
La casa ha sido diseñada pensando en el confort y la tecnología:
- Luminosidad Total: Apartamento totalmente exterior con vistas al jardín desde el salón.
- Climatización Perfecta: Aire acondicionado frío/calor por conductos con termostatos sectorizados, para que cada zona de la casa tenga la temperatura ideal.
- Comodidad y Seguridad: Carpintería exterior de PVC abatible con cristales Climalit, persianas eléctricas, puerta de seguridad y sistema de domótica integrado.
- Diseño Interior: Suelos de gres de alta calidad y armarios empotrados completamente vestidos en los dormitorios.
- Cocina de Vanguardia: Semiequipada con elegantes encimeras de Silestone y armarios, lista para que añadas tu toque personal.
Vive la Experiencia Oliva Nova
El residencial Sevilla 7 ofrece un entorno vallado y tranquilo con acceso exclusivo a:
- Piscina de adultos y niños rodeada de cuidados jardines.
- Ubicación Premium: Primera línea del campo de golf y a solo 900 metros de la playa.
- Deportes y Ocio: A 300 metros del prestigioso Centro Ecuestre de Oliva Nova.
- Comodidad: Incluye una práctica plaza de aparcamiento comunitario cubierta.
Además, la compra incluye el servicio posventa para garantizar tu tranquilidad desde el primer día.
¡Tu Sueño a Estrenar te Espera!
Este es el apartamento perfecto para quien busca lujo, tranquilidad y un estilo de vida de resort.
No dejes escapar la oportunidad de estrenar este exclusivo bajo con jardín en Oliva Nova.
Llámanos hoy mismo y agenda tu visita para descubrir tu futuro hogar.
Detalles Adicionales:
El precio incluye honorarios de inmobiliaria y plaza de aparcamiento comunitaria.
Gastos No Incluidos: ITP y los gastos de Notaria y Registro de la Propiedad.
EL ENTORNO
La casa se encuentra en la exclusiva urbanización de Oliva Nova, rodeada de un paisaje impresionante entre playa, montañas, naranjos y el azul del mar. Situada a 6 km. de la ciudad de Oliva, a 15 km. de Gandía y a 20 km. de Denia. Está perfectamente comunicada por la autopista AP7, el AVE en Valencia a unos 45 minutos y los aeropuertos de Alicante y Valencia.
Un lugar idílico y único en la Costa Mediterránea, que ha sabido compaginar perfectamente el desarrollo turístico y urbanístico con la conservación de la costa… LEER +
Conoces Oliva Nova ? Vuela con nosotros
.fad









































